服务热线:
010-62156001
关于我们
VOCs治理
有机危废处置/资源化
典型案例
新闻中心
联系我们
有机危废处置/资源化
业务简介
新型专用焚烧炉
三废一体化反应器ICI
浆态床反应器SBR
高温沸腾床反应器FBR
多层流化床反应器MFB
利用现有炉窑协同处置
水泥窑协同处置
水煤浆气化炉协同处置
最新文章
> 2016年5月,新三...
> 2015年11月,变...
> 2018年5月,增加...
> 2018年4月,10...
> 2018年3月,新三...
◆
新型专用焚烧炉
首页
> 有机危废处置/资源化 > 新型专用焚烧炉
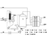
多层流化床反应器MFB
MFB+ICI,适用于石化、化工、制药、农药企业中比重不同的有机残渣、污泥等。 技术特点: ● 针对不同物性、组分的废料分别设置专门的流化床结构。 ● 焚烧温度不低于1100℃,烟气停留时间不小于3秒。严格控制燃烧时产生有害物质、防止燃烧产生二次污染。 ● 焚烧炉床料...
阅读更多
高温沸腾床反应器FBR
FBR+ICI适用于石化、化工、制药、农药企业中含盐废渣焚烧处理、硫酸亚铁回收 技术特点: ● 高温沸腾炉中还原性气体作用下形成气垫层,将粉末全部吹起并上下翻动形成还原池,将精馏残渣还原和净化,实现硫酸亚铁回收。 ● 可以保证物料有足够反应时间和烟气停留时间; ● 有...
阅读更多
浆态床反应器SBR
SBR+ICI适用于石化、化工、制药、农药企业中有机废盐回收。 技术特点: ● 实现高浓度有机废盐焚烧处理,回收固体盐,有机物废物去除率高,废渣焚毁去除率99.9%,燃烧效率99%,熔融产物灼减率≤3%; ● 可以保证含盐废弃物有足够熔融时间和烟气停留时间; ●...
阅读更多
有机三废一体化反应器ICI
应用范围:石化、化工、制药、农药企业中废液、废气、废固的减量及无害化处理。尤其适用于大量生化污泥处理、高浓度废液处理、废盐回收、精馏残渣焚烧及回收、药渣污泥混合焚烧处理、难处理的有机危废治理。 技术特点: ● 可同时对三废进行一体化处理,综合效益明显; ● 最高燃烧温度...
阅读更多
首页
上一页 1 下一页
尾页
当前第
1
页/总共
1
页 总共有
4
条记录